Odstavec předpisu 273/2021 Sb.
Vyhláška Ministerstva životního prostředí č. 273/2021 Sb., o podrobnostech nakládání s odpady
Příl.43

Příl.43
Evidenční list pro inventarizaci zařízení obsahujících polychlorované bifenyly PCB a odpadů PCB podle § 83 odst. 1 zákona
Vysvětlivky:
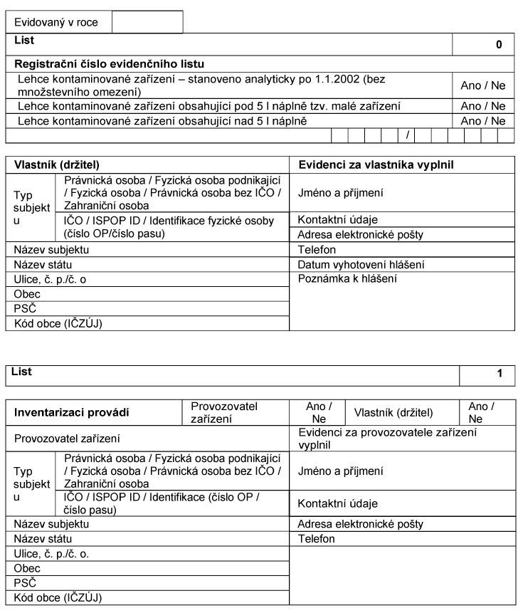
List 0
Tento list se vyplňuje u každého zařízení (látky), u kterého je prováděna inventarizace.
Registrační číslo evidenčního listu - uvede se způsob vyplnění registračního čísla podle způsobu prokazování přítomnosti PCB v zařízení. Registrační číslo je přiděleno podle tabulky č. 1. Vyplňuje vlastník (držitel) nebo provozovatel zařízení.
Tabulka č. 1: Registrační číslo evidenčního listu pro inventarizaci zařízení obsahujících PCB a odpadů PCB
I----------------------------I-----------------------------------------------I
I     Registrační číslo      I      Způsob prokazování přítomnosti PCB       I
I     evidenčního listu      I                 v zařízeních                  I
I----------------------------I-----------------------------------------------I
I čtyřmístné identifikační   I Analytickým stanovením po 1. 1. 2002 (v       I
I číslo osoby provádějící    I registrované laboratoři rozhodčí analytickou  I
I odběr vzorku / šestimístné I metodou podle ČSN EN 61619 Izolační kapaliny  I
I pořadové číslo vzorkovnice I - Kontaminace polychlorovanými bifenyly (PCB) I
I (údaje na lepicím štítku   I - Stanovení metodou kapilární plynové         I
I na vzorkovnici, ne číslo   I chromatografie), což znamená, že údaje        I
I přidělené laboratoří)      I "Identifikační číslo osoby provádějící odběr" I
I                            I a "Kód laboratoře" jsou známé.                I
I----------------------------I-----------------------------------------------I
I 6666/...... (šestičíslí se I Jedná se o zařízení obsahující pod 5 l        I
I nevyplňuje)                I náplně, tzv. malá zařízení, kde provozní      I
I                            I kapaliny obsahují 50-500 mg/kg PCB. Existence I
I                            I PCB se prokazují čestným prohlášením,         I
I                            I analytickým stanovením nebo odečtením ze      I
I                            I štítku.                                       I
I----------------------------I-----------------------------------------------I
I 5555/...... (šestičíslí se I Jedná se o zařízení obsahující nad 5 l        I
I nevyplňuje)                I náplně, kde provozní kapaliny obsahují 50-500 I
I                            I mg/kg PCB. Existence PCB se prokazují         I
I                            I analytickým stanovením nebo odůvodněným       I
I                            I předpokladem.                                 I
I----------------------------I-----------------------------------------------I
Vlastník (držitel)
Název subjektu - uvede se název / jméno a příjmení právnické osoby, fyzické osoby podnikající, fyzické osoby nepodnikající, právnické osoby bez IČO tak, jak je zapsán v obchodním rejstříku nebo v živnostenském listu nebo název zahraniční osoby.
IČO / ISPOP ID / Identifikace fyzické osoby (číslo OP/číslo pasu) - uvede se identifikační číslo osoby (IČO) vlastníka (držitele); pokud je IČO méně než osmimístné, doplní se zleva nuly na celkový počet osm míst. V případě právnické osoby bez IČO nebo zahraniční osoby se uvede ISPOP ID. V případě fyzické osoby se uvede číslo občanského průkazu nebo číslo pasu.
Název státu - uvede se název státu, ve kterém má zahraniční osoba sídlo.
Ulice, č.p./č.o., Obec, PSČ - uvedou se adresní údaje sídla vlastníka (držitele).
Kód obce (IČZÚJ) - uvede se identifikační číslo základní územní jednotky obce, na jejímž správním území má vlastník (držitel) sídlo. Číslo se uvádí podle jednotného číselníku obcí ČR vydaného Českým statistickým úřadem.
Evidenci za vlastníka vyplnil - uvede se jméno, příjmení, adresa elektronické pošty, číslo telefonu osoby, která hlášení vyplnila a je kontaktní osobou pro oblast PCB.
Datum vyhotovení hlášení - uvede se datum vyhotovení hlášení ve formátu DD.MM.RRRR.
Do položky "Poznámka k hlášení" uvede vlastník (držitel) případně další informace k ohlašovanému zařízení, které není možné uvést v dalších listech hlášení.
List 1
Inventarizaci provádí - označte kdo provádí inventarizaci.
Provozovatel zařízení
Název subjektu - uvede se název / jméno a příjmení právnické osoby, fyzické osoby podnikající, fyzické osoby nepodnikající, právnické osoby bez IČO tak, jak je zapsán v obchodním rejstříku nebo v živnostenském listu nebo název zahraniční osoby.
IČO / ISPOP ID / Identifikace fyzické osoby (číslo OP / číslo pasu) - uvede se identifikační číslo osoby (IČO) provozovatele zařízení; pokud je IČO méně než osmimístné, doplní se zleva nuly na celkový počet osm míst. V případě právnické osoby bez IČO nebo zahraniční osoby se uvede ISPOP ID. V případě fyzické osoby se uvede identifikace fyzické osoby - číslo občanského průkazu nebo číslo pasu.
Název státu - uvede se název státu, ve kterém má zahraniční osoba sídlo.
Ulice, č.p../ č.o., Obec, PSČ - uvedou se adresní údaje sídla provozovatele zařízení.
Kód obce (IČZÚJ) - uvede se identifikační číslo základní územní jednotky obce, na jejímž správním území má provozovatel zařízení sídlo. Číslo se uvádí podle jednotného číselníku obcí ČR vydaného Českým statistickým úřadem.
Evidenci za provozovatele zařízení vyplnil - uvede se jméno, příjmení, adresa elektronické pošty, číslo telefonu osoby, která hlášení vyplnila a je kontaktní osobou pro otázku PCB.
Místo umístění zařízení - uvede se identifikace provozovny, kde je zařízení umístěno.
Obec, Kód obce (IČZÚJ) - uvede se název obce a identifikační číslo základní územní jednotky obce, na jejímž správním území se nachází provozovna, kde je zařízení umístěno. Číslo se uvádí podle jednotného číselníku obcí ČR vydaného Českým statistickým úřadem.
Specifikace místa - rozumí se specifikace místa uložení zařízení.
Zeměpisné souřadnice přibližného umístění zařízení - uvede se zeměpisná šířka a délka umístění ohlašovaného zařízení ve formátu DD MM SS.sss, uvedená v souřadnicovém systému WGS 84 (World Geodetic System).
Výrobní číslo zařízení (jiná identifikace) - uvede se číslo ze štítku výrobce, rozumí se výrobní číslo základního zařízení nebo výrobní číslo oddělené části naplněné provozní kapalinou, která má své vlastní výrobní číslo, nebo jiná identifikace uskladnění provozní kapaliny s PCB (platí pro kódy zařízení 81, 82, 83 a 90).
Kód zařízení / Hermetizace zařízení - uvede se kód druhu zařízení nebo způsobu uskladnění, na které se vztahuje vedení evidence, podle tabulky č. 2. Hermetizace zařízení - vyplňte "H" v případě hermetizovaného zařízení a "N" nehermetizovaného zařízení.
Tabulka č. 2: Seznam druhu zařízení nebo způsobu uskladnění včetně přiřazených kódů pro inventarizaci zařízení obsahujících PCB a odpadů PCB
I----------------------------------------------------------------------I-----I
I   Zařízení s obsahem provozní kapaliny/ způsob uskladnění provozní   I Kód I
I                           kapaliny s PCB                             I     I
I----------------------------------------------------------------------I-----I
I            Zařízení elektrická plněná elektroizolační kapalinou            I
I----------------------------------------------------------------------I-----I
I Výkonový transformátor                                               I 10  I
I----------------------------------------------------------------------I-----I
I Tlumivka (indukční cívka s jádrem)                                   I 11  I
I----------------------------------------------------------------------I-----I
I Reaktor (indukční cívka bez jádra)                                           I 12  I
I----------------------------------------------------------------------I-----I
I Transformátor elektrofiltru (odlučovač)                              I 13  I
I----------------------------------------------------------------------I-----I
I Průchodka                                                            I 14  I
I----------------------------------------------------------------------I-----I
I Přepínač odboček (v transformátoru)                                  I 15  I
I----------------------------------------------------------------------I-----I
I Přístrojový (měřicí) transformátor napětí (PTN)                      I 16  I
I----------------------------------------------------------------------I-----I
I Přístrojový (měřicí) transformátor proudu (PTP)                      I 17  I
I----------------------------------------------------------------------I-----I
I Přístrojový (měřicí) transformátor kombinovaný (PTK) - napětí +      I 18  I
I proud                                                                I     I
I----------------------------------------------------------------------I-----I
I Kondenzátor s kapalným dielektrikem (DZ)                             I 20  I
I----------------------------------------------------------------------I-----I
I Kondenzátorová baterie (MZ) o celkovém objemu náplně více než 5      I 21  I
I litrů, která obsahuje dílčí zařízení (DZ) s kapalným dielektrikem o  I     I
I objemu náplně méně než 5 litrů                                       I     I
I----------------------------------------------------------------------I-----I
I Motor (MZ) o celkovém objemu náplně více než 5 litrů, který obsahuje I 22  I
I dílčí zařízení (DZ) s kapalným dielektrikem o objemu náplně méně než I     I
I 5 litrů                                                              I     I
I----------------------------------------------------------------------I-----I
I Rozváděčová skříň (MZ) o celkovém objemu náplně více než 5 litrů,    I 23  I
I která obsahuje dílčí zařízení (DZ) s kapalným dielektrikem o objemu  I     I
I náplně méně než 5 litrů                                              I     I
I----------------------------------------------------------------------I-----I
I Vypínač                                                              I 25  I
I----------------------------------------------------------------------I-----I
I Rezistor (rotorový spouštěč)                                         I 26  I
I----------------------------------------------------------------------I-----I
I Ostatní elektrická zařízení s kapalným dielektrikem                  I 30  I
I----------------------------------------------------------------------I-----I
I Stykový transformátor                                                I 31  I
I----------------------------------------------------------------------I-----I
I                            Zařízení ostatní                                I
I----------------------------------------------------------------------I-----I
I Hydraulické důlní zařízení                                           I 40  I
I----------------------------------------------------------------------I-----I
I Vakuové čerpadlo                                                     I 50  I
I----------------------------------------------------------------------I-----I
I Průmyslové zařízení s ohřevem teplonosnou kapalinou (duplikátor,     I 60  I
I obalovna drti apod.)                                                 I     I
I----------------------------------------------------------------------I-----I
I Jiné zařízení                                                        I 70  I
I----------------------------------------------------------------------I-----I
I                         PCB látky a odpady PCB                             I
I----------------------------------------------------------------------I-----I
I Nádrž s provozní kapalinou s PCB                                     I 81  I
I----------------------------------------------------------------------I-----I
I Cisterna s provozní kapalinou s PCB                                  I 82  I
I----------------------------------------------------------------------I-----I
I Sud s provozní kapalinou s PCB                                       I 83  I
I----------------------------------------------------------------------I-----I
I Vyřazené zařízení (elektrotechnické nebo ostatní) obsahující PCB     I 84  I
I----------------------------------------------------------------------I-----I
I Zemina, sediment, kal a jiný odpad PCB                               I 85  I
I----------------------------------------------------------------------I-----I
I Zemina in situ, kontaminovaný objekt nebo jeho část                  I 86  I
I----------------------------------------------------------------------I-----I
I Jiný způsob uskladnění provozní kapaliny s PCB                       I 90  I
I----------------------------------------------------------------------I-----I
 (DZ) - Dílčí zařízení
 (MZ) - Mateřské zařízení
Upřesnění druhu zařízení (platí pro kódy zařízení 30, 70 a 90) - uvede se druh zařízení či způsobu uskladnění, na které se vztahuje vedení evidence a na které nelze použít jiný kód zařízení.
Rozlišení oddělených částí naplněných provozní kapalinou - uvede se tehdy, pokud zařízení obsahuje více oddělených částí naplněných provozní kapalinou, více než 5 litrů, a které nemají své vlastní výrobní číslo, například jednotlivé póly u vypínače.
Vazba na mateřské zařízení - uvede se výrobní číslo základního zařízení, například výrobní číslo transformátoru se použije pro identifikaci průchodek a přepínače odboček. Nevyplňuje se, pokud zařízení neobsahuje oddělené části naplněné provozní kapalinou s vlastním výrobním číslem.
Typ zařízení - uvede se ze štítku výrobce.
Výrobce zařízení - uvede se ze štítku výrobce.
Rok výroby zařízení - uvede se ze štítku výrobce ve formátu RRRR.
Jmenovitá napětí - uvedou se jmenovitá napětí zařízení v kV, např. 110/22 kV.
Jmenovitý výkon - uvede se jmenovitý výkon zařízení, např. 63 MVA.
Druh provozní kapaliny - uvede se kód druhu provozní kapaliny, podle tabulky č. 3.
Tabulka č. 3: Seznam kódů provozních kapalin obsahujících PCB
I-------------------------------------------------I--------------------------I
I              Provozní kapalina                  I       Kód kapaliny       I
I-------------------------------------------------I--------------------------I
I Minerální izolační olej                         I            01            I
I-------------------------------------------------I--------------------------I
I Syntetický izolační olej                        I            02            I
I-------------------------------------------------I--------------------------I
I Minerální turbinový olej                        I            03            I
I-------------------------------------------------I--------------------------I
I Syntetický turbinový olej                       I            04            I
I-------------------------------------------------I--------------------------I
I Minerální hydraulický olej                      I            05            I
I-------------------------------------------------I--------------------------I
I Syntetický hydraulický olej                     I            06            I
I-------------------------------------------------I--------------------------I
I Minerální olej vakuový                          I            07            I
I-------------------------------------------------I--------------------------I
I Syntetický olej vakuový                         I            08            I
I-------------------------------------------------I--------------------------I
I Askarel nebo jiná provozní kapalina na bázi PCB I            09            I
I-------------------------------------------------I--------------------------I
I Jiný druh provozní kapaliny                     I            99            I
I-------------------------------------------------I--------------------------I
Upřesnění druhu provozní kapaliny (platí pro kód 99) - uvede se další upřesnění druhu provozní kapaliny v případě, že nelze použít ostatní kódy z uvedené tabulky.
Obchodní název provozní kapaliny - uvede se obchodní název provozní kapaliny.
Výrobce provozní kapaliny - uvede se výrobce provozní kapaliny.
Hmotnost zařízení - uvede se hmotnost zařízení v kg, na tři desetinná místa.
Hmotnost provozní kapaliny / Způsob zjištění - uvede se hmotnost provozní kapaliny v zařízení v kilogramech, na tři desetinná místa. Způsob zjištění - "V" (údaj od výrobce), "M" (údaj naměřený) a "O" (údaj odhadnutý).
List 2
Způsob prokázání (ne)existence PCB (lehce kontaminované zařízení) nebo odpady PCB - označte způsob prokázaní z následujících možností.
Prokázání (ne)existence PCB se provádí:
- čestným prohlášením výrobce podle § 69 odst. 2 této vyhlášky
- analytickým stanovením provedeným po 1. 1. 2002,
- odečtením ze štítku zařízení podle § 82 odst. 5 zákona a
- odůvodněným předpokladem podle § 81 odst. 2 a 3 zákona.
Čestné prohlášení výrobce - Identifikace výrobce:
Název subjektu - uvede se název / jméno a příjmení právnické osoby, fyzické osoby podnikající nebo právnické osoby bez IČO tak, jak je zapsán v obchodním rejstříku nebo v živnostenském listu nebo název zahraniční osoby.
IČO / Identifikátor výrobce - uvede se identifikační číslo osoby (IČO) výrobce; pokud je IČO méně než osmimístné, doplní se zleva nuly na celkový počet osm míst. V případě právnické osoby bez IČO nebo zahraniční osoby se uvede jiná identifikace výrobce, tzv. Identifikátor výrobce.
Název státu - uvede se název státu, ve kterém má sídlo zahraniční osoba.
Ulice, č.p./ č.o., Obec, PSČ - uvedou se adresní údaje sídla výrobce.
Kód obce (IČZÚJ) - uvede se identifikační číslo základní územní jednotky obce, na jejímž správním území má výrobce sídlo. Číslo se uvádí podle jednotného číselníku obcí ČR vydaného Českým statistickým úřadem.
Identifikace prohlášení výrobce (včetně prohlášení) - číslo nebo jiná identifikace prohlášení nebo číslo protokolu. Prohlášení nebo protokol dokladující (ne)existenci PCB látek v zařízení osoba provádějící inventarizaci přiloží k inventarizačnímu listu.
Číslo protokolu - číslo protokolu analytického stanovení způsobu prokazování (ne)existence PCB.
Protokol o odběru vzorku - jedná se o údaje o podmínkách odběru vzorku pro analytické stanovení způsobu prokazování (ne)existence PCB.
Zařízení - označí se jedna z možností v provozu / mimo provoz; v provozu se rozumí i zařízení dočasně v odstávce z provozních důvodů, mimo provoz se rozumí zařízení vyřazené z provozu nebo trvale uložené ve skladu.
Specifikace místa odběru - uvede se pouze v případě více odběrných míst na jednom zařízení, co nejpřesněji se uvede místo odběru vzorku ze zařízení.
Datum odběru vzorku - uvede se datum odběru vzorku ve formátu DD.MM.RRRR.
Číslo vzorku - vyplní se číslo uvedené na vzorkovnici.
Protokol o analytickém stanovení PCB nebo obsahu provozní kapaliny podle prohlášení výrobce - jedná se o zápis výsledků analýzy nebo údajů z prohlášení výrobce.
Kód laboratoře - uvede se identifikátor laboratoře, která provedla analýzu. Každé laboratoři oprávněné k provádění analýz v rámci inventarizace přidělí kód resortní pracoviště pověřené organizací evidence.
Číslo protokolu - uvede se číslo protokolu o analytickém stanovení, které přidělí laboratoř.
Datum analýzy - uvede se datum analýzy ve formátu DD.MM.RRRR.
Koncentrace PCB v náplni v [mg/kg] - uvede se výsledek chemické analýzy pro jednotlivé kongenery, pokud některý kongener nebyl v náplni obsažen, příslušné pole se vyplní nulou a uvede se do Poznámky pro List 2 informace, že příslušný kongener nebyl v náplní obsažen. Hodnoty zadejte s přesností na 2 desetinná místa.
Celkem - rovná se součtu všech stanovených (uvedených) kongenerů.
Prohlášení o obsahu PCB - rozhodující informace pro evidenci zařízení.
Zařízení obsahuje PCB - obsahem PCB se rozumí případ, kdy údaj "Celkem" je větší než 50 mg/kg, označí se možnost "Ano". Pokud údaj "Celkem" je menší než 49,99 mg/kg, označí se možnost "Ne".
Poznámka pro List 2 - uvede se jakýkoli údaj, který by bylo vhodné uvést, resp. informace, že příslušný kongener nebyl v náplní obsažen (viz vysvětlivka "Koncentrace PCB v náplni v [mg/kg]").
List 3
Plánovaný způsob nakládání se zařízením (lehce kontaminovaným zařízením) nebo odpady PCB - označí se plánovaný způsob nakládání.
Plán odstranění:
Termín odstranění - uvede se plánovaný termín odstranění ve formátu MM.RRRR.
Způsob odstranění - označí se plánovaný způsob odstranění, v případě označení způsobu odstranění "Jiné (N3, D8, D9, D12, D15)" se uvede co nejpřesněji způsob nakládání se zařízením obsahujícím PCB, vyspecifikuje se způsob jiného odstranění.
Plán dekontaminace:
Termín dekontaminace - uvede se plánovaný termín dekontaminace ve formátu MM.RRRR.
Způsob dekontaminace - uvede se způsob nakládání se zařízením obsahujícím PCB, vyspecifikuje se způsob dekontaminace / odstranění provozní kapaliny.
Poznámka pro List 3 - uvede se jakýkoli údaj, který by bylo vhodné uvést k plánovanému způsobu nakládání se zařízením nebo odpady PCB.
List 4
Způsob nakládání se zařízením (lehce kontaminovaným zařízením) nebo odpady PCB (odstranění nebo dekontaminace):
Datum nakládání - uvede se datum, kdy bylo zařízení předáno ke zneškodnění nebo odstranění, nebo případně předáno k dekontaminaci ve formátu DD.MM.RRRR.
Hmotnost zařízení - rozumí se hmotnost zařízení, s nímž je nakládáno, v kilogramech, na tři desetinná místa.
Hmotnost provozní kapaliny v zařízení - uvede se hmotnost provozní kapaliny, v kilogramech, na tři desetinná místa.
Způsob nakládání - označí se jedna možnost.
Specifikace jiného způsobu nakládání - uvede se způsob nakládání se zařízením obsahujícím PCB.
Zařízení předal (vlastník / provozovatel) - uvede se jméno a příjmení zástupce provozovatele nebo vlastníka (držitele) zařízení, který zařízení obsahující PCB předal zařízení pro nakládání s odpady.
Zařízení pro nakládání s odpady
Název subjektu - uvede se název / jméno a příjmení právnické osoby, fyzické osoby podnikající tak, jak je zapsán v obchodním rejstříku nebo v živnostenském listu nebo název zahraniční osoby.
IČO / Identifikátor zahraniční osoby - uvede se identifikační číslo osoby (IČO) zařízeni pro nakládání s odpady; pokud je IČO méně než osmimístné, doplní se zleva nuly na celkový počet osm míst. V případě zahraniční osoby se uvede jiná identifikace, tzv. Identifikátor zahraniční osoby.
Název státu - uvede se název státu, ve kterém je usídlena zahraniční osoba.
Ulice, č.p. / č.o., Obec, PSČ - uvedou se adresní údaje sídla zařízení pro nakládání s odpady.
Kód obce (IČZÚJ) - uvede se identifikační číslo základní územní jednotky obce, na jejímž správním území má zařízení pro nakládání s odpady sídlo. Číslo se uvádí podle jednotného číselníku obcí ČR vydaného Českým statistickým úřadem.
Identifikační číslo zařízení (IČZ) - uvede se identifikační číslo zařízení pro nakládání s odpady.
Zástupce za zařízení pro nakládání s odpady - uvede se jméno, příjmení, adresa elektronické pošty, telefon, zástupce zařízení pro nakládání s odpady, který zařízení obsahující PCB převzal k dalšímu nakládání.
Poznámka pro List 4 - uvede se jakýkoli údaj, který by bylo vhodné uvést ke způsobu nakládání se zařízením nebo odpady PCB.
List 5
Hlášení přechodu / převodu vlastnického/užívacího práva - označí se, o jakou změnu práv se jedná.
Datum změny vlastnického / užívacího práva ve formátu DD.MM.RRRR.
Specifikace nového umístění zařízení u nového vlastníka (držitele) /provozovatele zařízení - uvede se identifikace nové provozovny, kde je zařízení nově umístěno.
Obec, Kód obce (IČZÚJ) - uvede se název obce a identifikační číslo základní územní jednotky obce, na jejímž správním území se nachází provozovna, kde je zařízení umístěno. Číslo se uvádí podle jednotného číselníku obcí ČR vydaného Českým statistickým úřadem.
Zeměpisné souřadnice přibližného umístění zařízení - uvede se zeměpisná šířka a délka umístění ohlašovaného zařízení ve formátu DD MM SS.sss, uvedená v souřadnicovém systému WGS 84 (World Geodetic System).
Poznámka pro List 5 - uvede se jakýkoli údaj, který by bylo vhodné uvést k změně vlastnických / užívacích práv.
Nový vlastník (držitel) / provozovatel zařízení - vyplňuje se název / jméno a příjmení firmy tak, jak je zapsán v obchodním rejstříku nebo v živnostenském listu. Pokud je provozovatel zařízení totožný s vlastníkem (držitelem), potom se vyplní v identifikačních údajích provozovatele zařízení.
Název subjektu - uvede se název / jméno a příjmení právnické osoby, fyzické osoby podnikající, fyzické osoby nepodnikající, právnické osoby bez IČO tak, jak je zapsán v obchodním rejstříku nebo v živnostenském listu nebo název zahraniční osoby.
IČO / ISPOP ID / Identifikace fyzické osoby (číslo OP / číslo pasu) - uvede se identifikační číslo osoby (IČO) nového vlastníka (držitele) / provozovatele zařízení; pokud je IČO méně než osmimístné, doplní se zleva nuly na celkový počet osm míst. V případě právnické osoby bez IČO nebo zahraniční osoby se uvede ISPOP ID. V případě fyzické osoby se uvede identifikace fyzické osoby - číslo občanského průkazu nebo číslo pasu.
Název státu - uvede se název státu, ve kterém má sídlo zahraniční osoba.
Ulice, č.p. / č.o., Obec, PSČ - uvedou se adresní údaje sídla nového vlastníka (držitele) / provozovatele zařízení.
Kód obce (IČZÚJ) - uvede se identifikační číslo základní územní jednotky obce, na jejímž správním území má nový vlastník (držitel) / provozovatel zařízení sídlo. Číslo se uvádí podle jednotného číselníku obcí ČR vydaného Českým statistickým úřadem.
Osoba za vlastníka (držitele) / provozovatele zařízení - uvede se jméno, příjmení, adresa elektronické pošty, telefon osoby, která je u nového vlastníka (držitele) / provozovatele zařízení kontaktní osobou pro oblast PCB.

Tyto webové stránky využívají k analýze návštěvnosti soubory cookies. Pokud váš internetový prohlížeč má v nastavení cookies povoleny, je nezbytný váš souhlas s použitím této technologie.

Více informací

Chyba komunikace se serverem

Nastaly technické problémy. Zkontrolujte prosím připojení k síti, a pokud pracujete jako přihlášený uživatel, ověřte prosím nastavení VPN a stav přihlášení.